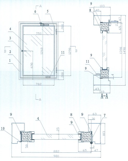
圖集號GFC 1015-H-A1.50(甲級)指鋼質甲級寬度1米,高度1.5,活動式隔熱防火窗,甲級防火窗耐火時是1.5小時。 鋼質防火窗具有堅固耐用,性能穩定,完整性好等特點,本款窗外框尺寸為1000mm*1500mm,內設活動窗扇,鑲嵌整塊防火玻璃,配備防火鉸鏈、把手;消費者可根據使用需要配置單獨溫感式或消防聯動式防火窗自閉系統;產品尺寸可根據用戶洞口規格進行加工制造。 窗體框架部分按照防火窗規范要求選用1.2mm優質鍍鋅鋼板(也可采用不銹鋼)制造,表面采取烤漆工藝處理,提供多種顏色供消費者選擇,玻璃采用灌漿型隔熱防火玻璃,面積為770mm*1280mm,厚度為25mm,在滿足日常采光所須的同時,符合消防設計規范。  相關產品介紹: 防火窗 http://www.miphoto.cn/pro.asp?keys=50 自閉式防火窗 http://www.miphoto.cn/show.asp?id=5582 |